‹ › ×
    LA FABRIQUE D'ARCHITECTURE
    • CARNET D'ARCHITECTURES
    • EXERCICES DE STYLE
    • CONCEPT - MAISON
    • SCENOGRAPHIE
    • CONTACT

    LA FABRIQUE D'ARCHITECTURE, POURQUOI ?

    Les valeurs et points forts que je souhaite promouvoir reposent essentiellement sur la thématique de la maison individuelle et celle de la commande ; 

    C’est en cela que le maître d’ouvrage doit être acteur de son projet et l’architecte doit procéder à un conseil adapté et une écoute attentive.

    Notre objectif est de créer un projet original et sur-mesure alliant les notions de fonctionnalité, d’usage et d’esthétisme correspondant à vos souhaits et à votre budget tout en respectant les contraintes environnementales, techniques, réglementaires du site de votre construction.

     

    Construction, rénovation ou agrandissement, un architecte s’adapte à tous types de projets

    Les questions d’usage sont au cœur de ma réflexion ainsi je conçois l'architecture à l'échelle intime de la vie quotidienne et cherche à l'inscrire selon les comportements domestiques, culturels de chacun. 

     

    "Des propos, un site, un programme, des usages, une réglementation, des lumières, une économie, des techniques, une démarche collective, un rêve, un dessin, un voeu …

    autant de matières supports pour définir la forme architecturale"

    PROJET : LE BELVEDERE

    L’extension est située sur les côteaux du port de Pornic.

    Les axes sur lesquels repose le projet sont :

    • Créer une continuité et rompre avec le caractère traditionnel du volume existant ( un immeuble ancien ).
    • Proposer une architecture ouverte et légère, en bois, avec une structure et une couverture métalliques, apportant un esthétisme contemporain, une architecture bioclimatique et une vue imprenable sur le vieux port.
    AVANT
    PROJET

    PROJET : MAISON SUR PILOTIS

    Cette extension en bois, située dans le sud de l'agglomération nantaise, a été conçue  afin de répondre à plusieurs objectifs :

    • Créer une continuité et rompre avec le caractère traditionnel du volume l'existant.
    • Proposer une architecture ouverte et légère, en bois et sur pilotis, apportant un esthétisme contemporain à la simplicité du volume existant.
    • Profiter de l'orientation Sud pour créer un salon dans la continuité de la salle à manger, et ouvrant sur une terrasse.

    PROJET : DE LA GRANGE A L'HABITAT

    Le projet se situe en Ardèche ;

    Les axes surlesquels repose le projet sont les suivants :

    - Proposer une architecture ouverte apportant un esthétisme contemporain à la simplicité du volume existant ;

    - Profiter de l'orientation Sud et du volume existant pour créer un séjour toute hauteur avec un apport maximal de lumière.

    AVNAT
    APRES

    PROJET : CLOS OUVERT, L'ENVERS DU DECOR 

    Projet réalisé en partenariat avec Ph.Migné, architecte DPLG

    Le projet est situé à Saint Viaud

    L’existant est composé d'une maison avec une cour intérieure et d’un bâtiment fermé sur le jardin. L’idée est donc de requalifier ces espaces : ouvert ( la cour ) et fermé ( la grange ) pour les rendre habitables.

    Les axes  sur lesquels repose le projet sont :

    • Créer un grand espace de vie ouvert sur le jardin  grâce à une extension de la maison existante ( volume avec une toiture tuiles à 4 pans )
    • Créer un espace de transition et d’articulation avec un patio et des verrières ( volume avec un toit terrasse )

    Ainsi ce qui était femé dans l’existant devient ouvert et vice versa.Le jardin à l’Ouest prend ainsi tout son sens.

    PROJET : MAISON DE FAMILLE

    Le projet est situé au Pouliguen

    Les axes  sur lesquels repose le projet sont :

    • Créer une extension de la maison existante en utilisant le bâti linéaire existant ;  L’objectif étant de créer une résidence familiale  dans laquelle chacun aura son unité spatiale : parents comme enfants
    • Le travail a donc consisté essentiellement au réagencement de l’existant pour l’organisation spatiale du programme pour la partie enfants et à la création d’une nouvelle unité de vie pour la partie parents.
    • L’architecture de ce nouveau volume se veut dans le même esprit que l’existant.
    AVANT
    APRES

    PROJET : NEO BRETONNE CONTEMPORAINE

    Le projet est situé au Pouliguen à proximité de la côte sauvage

    Les axes  sur lesquels repose le projet sont :

    • Apporter un esthétisme contemporain à une maison de type néo-breton, ceci en terme de volumétrie et en donnant une nouvelle dimension spatiale au séjour avec l’extension créée pour la cuisine.
    • Apporter un confort de lumière avec les ouvertures créées sur le jardin.
    AVANT
    APRES

    PROJET : EXTENSIBLE AU POSSIBLE

    Projet réalisé en partenariat avec ph.Migné, architecte DPLG

    Le projet est situé dans un quartier résidentiel de Pornic.

    La maison existante date des années 80 .

    Les  axes sur lesquels repose le projet sont :

    • Au Nord, proposer une architecture indépendante de l'existant ( suite parentale ), tel un ilôt relié par un patio.
    • Au Sud, proposer une architecture dans la continuité de l'existant, ouverte sur l'extérieur ( cuisine d’été et carport ).

    Ainsi nous avons relooké et apporté de l’espace à ce modeste pavillon.

    AVANT
    APRES

    PROJET : L'ATRIUM AU COEUR DES DOUVES

    Projet réalisé en partenariat avec ph.Migné, architecte DPLG

    Le projet est situé à Pornic dans un quartier anciennement constitué de douves.

    L’existant est composé de 2 bâtiments avec une cour intérieure.

    le projet consiste en la création d’une petite extension en verrière (type véranda) dans la  continuité du bâti existant. Ce nouveau volume plus petit et plus bas que celui sur lequel il s’adosse viendra s’imbriquer côté cour dans la toiture de la maison donnant sur la rue. 

    Ce nouveau volume :

    • permettra un apport de lumière dans le bâti existant notamment celui situé côté rue,
    • créera une articulation et liaison entre les 2 parties de maison existantes 
    • créera une ouverture visuelle vers le jardin. 
    AVANT
    APRES

    PROJET : RELOOKING

    Le projet est situé à La Baule, dans une zone résidentielle d’habitat en secteur sauvegardé. Les  axes sur lesquels repose le projet sont :

    • donner un nouveau look à cette maison de type basque,en enrichissant le gabarit de la maison existante par  l’adjonction à l’étage d’un volume central simple, ceci pour augmenter la surface de plancher des combles existantes, 
    • apporter de la luminosité et créer des terrasses accessibles pour les chambres à l’étage. 

    Le volume central apportera un caractère symétrique à la nouvelle volumétrie de la maison.

    AVANT
    APRES
    AVANT
    APRES

    PROJET : SORTIR DU LOT

    La maison est située dans un lotissement pavillonnaire du Pouliguen.

    Toutes les maisons sont à l'identique.

    Il s'agit donc d'enrichir le gabarit traditionnel de la maison existante par l'adjonction

    - d'un volume simple en toit terrasse sur le pignon Sud Ouest pour la création d'un garage et la reformulation d'une entrée ;

    - d'un second volume ouvert sur le jardin et traité avec un toit terrasse pour l'agrandissement du séjour et de la chambre ;

    On modifiera à l'étage la lucarne existante pour l'agrandir et lui donner un aspect contemporain, panoramique à toit plat.

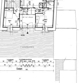
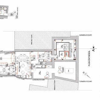
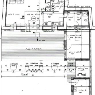
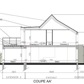
    PROJET : HAUTEUR & VOLUMES

     

    Le projet est situé à Carquefou.

    L'axe sur lequel repose le projet est :

    - proposer une architecture avec une articulation de volumes de hauteurs différentes.

    MENTIONS LEGALES